
УСЛУГИ
1. Обследование зданий и сооружений, попадающих в предварительно - назначенную зону влияния нового строительства с целью установления текущей категории технического состояния и определения предельно допустимых дополнительных деформаций основания согласно СП 22.13330.2016.
2. Обследование зданий и сооружений, подлежащих капитальному ремонту, реконструкции или изменению этажности с формированием заключения о возможности проведения данных работ и рекомендациями по устранению выявленных дефектов строительных конструкций для обеспечения безопасной эксплуатации здания или сооружения.
3. Обследование зданий и сооружений, подлежащих сносу или демонтажу с целью установления их конструктивных особенностей и объемов строительных конструкций.
4. Обследование внутренних и наружных инженерных коммуникаций с целью установления текущей категории технического состояния и формированием рекомендаций по устранению выявленных дефектов.
5. Определение характеристик строительных конструкций с использованием приборов неразрушающего контроля.
6. Контроль качества выполненных работ, в том числе установление соответсвия фактически выполненных работ к проектным.
7. Сопровождение отчетной документации в Государтсвенной экспертизе.
НАШИ ПРОЕКТЫ ВКЛЮЧАЮТ В СЕБЯ СЛЕДУЮЩЕЕ
1. Пояснительная записка с описанием конструктивных особенностей обследуемого здания или сооружения, результаты обследования, выводы с установленной категорией технического состояния и рекомендации по устранению выявленных дефектов.
2. Результаты определения характеристик строительных конструкций.
3. Ведомость дефектов, выявленных в результате обследования.
4. Материалы фотофиксации, выявленных дефектов.
5. Карта дефектов, отражающая реальные места расположения поврежденных конструкций.
Состав проекта изменяется в зависимости от поставленных задач заказчиком работ.




Обследование зданий и сооружений в Москве и МО, а также за ее пределами – «ГЕОЭЗИС»
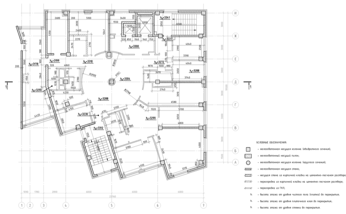
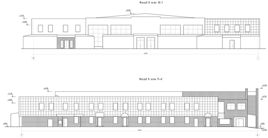
Главной задачей обследования зданий и сооружений является определение текущего технического состояния объекта путем проведения ряда необходимых мероприятий согласно действующим нормативам и целям заказчика. Обследование и мониторинг состояния здания позволяет своевременно выявить дефекты конструкций, объективно оценить эксплуатационные параметры и возможность для дальнейшей реконструкции или ремонта объекта.
СКОРО ЗДЕСЬ БУДУТ НАШИ ПРОЕКТЫ С ПРИМЕНЕНИЕМ ТЕХНОЛОГИИ BIM МОДЕЛИРОВАНИЯ







